公园城市

日期:[2022/6/4] 作者:[上海南大开发] 阅读数:


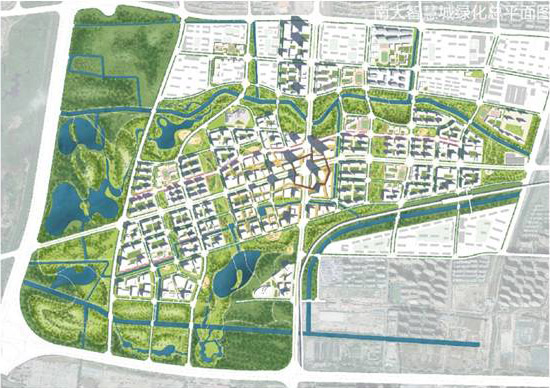
生态规划


在保持绿化总量不变的基础上,通过合理化生态绿化布局、将绿化空间与产业空间、居住空间深度融合,构建水绿融合、疏密有致的总体空间格局,打造优美和谐的“公园城市”。



走马塘沿线景观

Copyright 2021-2025 上海南大开发建设有限公司
地址:上海市祁连山路1588号南大数智中心A栋10-12F
邮编:200436
沪ICP备2021015818号